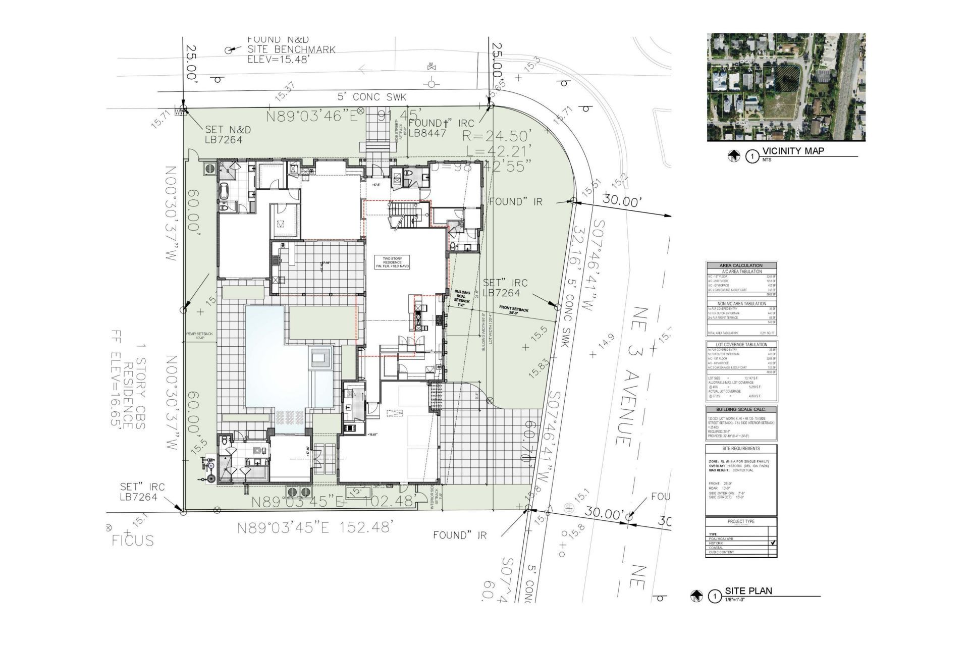
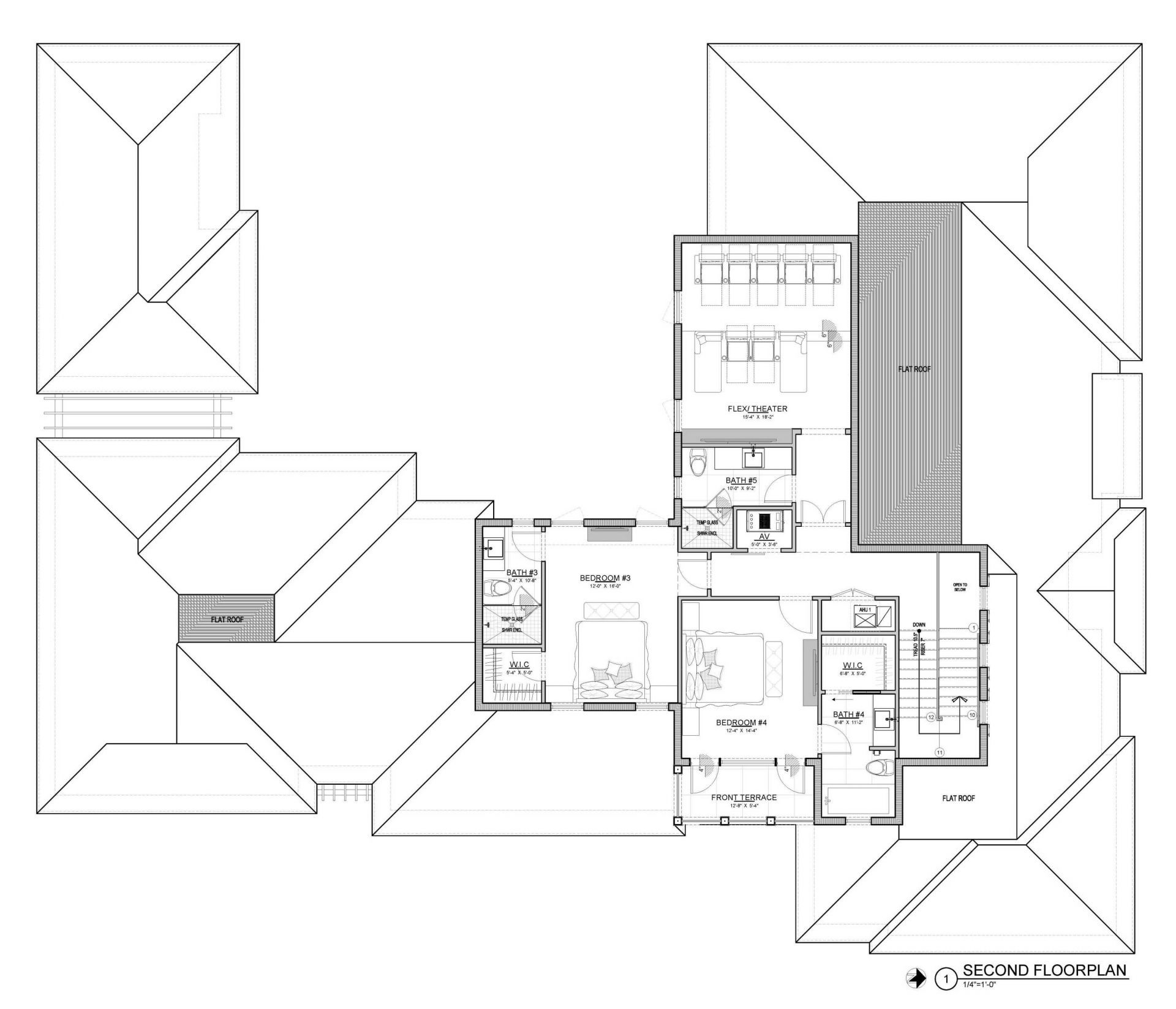
An opportunity to secure a fully designed coastal estate in the heart of Downtown Delray Beach with the ability to personalize prior to final engineering completion. Located just four blocks from Atlantic Avenue and less than a mile to the beach, this 13,165+/- SF corner lot within the Del Ida Park overlay includes award-winning architectural plans by Randall Stofft Architects for a 6,217 total SF (4,941 SF under air) two-story coastal transitional residence featuring six bedrooms, six-and-a-hal...An opportunity to secure a fully designed coastal estate in the heart of Downtown Delray Beach with the ability to personalize prior to final engineering completion. Located just four blocks from Atlantic Avenue and less than a mile to the beach, this 13,165+/- SF corner lot within the Del Ida Park overlay includes award-winning architectural plans by Randall Stofft Architects for a 6,217 total SF (4,941 SF under air) two-story coastal transitional residence featuring six bedrooms, six-and-a-half baths, a resort-style courtyard pool, club/wellness flex space, and expansive indoor-outdoor living.Historic review is in its final stage, and architectural design is complete positioning a buyer significantly ahead of a typical new construction timeline. Set on a 13,165 + SF corner lot within the Del Ida Park overlay, this property is surrounded by newly built and planned multimillion-dollar residences, including two luxury homes slated for the adjacent parcels anchoring a block that is rapidly becoming one of East Delray's most desirable residential pockets. The thoughtfully designed layout offers a sophisticated luxury floor plan that can still be customized to suit a buyer's vision, allowing flexibility while preserving the architectural intent. Enjoy the ability to walk or golf-cart to Atlantic Avenue's caf?s, boutiques, dining, and nightlife, while living on a quiet residential street minutes from the sand. This is a rare opportunity to secure a prime downtown Delray location paired with luxury plans, offering a streamlined path to creating a signature coastal residence without the delays typically associated with new construction planning and approvals. The shown architectural plans are included with the sale as an added value and are not required to be used, providing flexibility for buyers who wish to modify the existing design or pursue a fully custom home, subject to applicable approvals and buyer due diligence. The information published and provided, including but not limited to prices, measurements, square footages, lot sizes, features, finishes, and calculations, is subject to errors, omissions, or changes without notice. All information should be independently verified, and buyers are encouraged to perform their own due diligence.
View MoreCourtesy of
Agency Name: Illustrated Properties
Presented by
Agent Name: Jeff Hallas
Agent Phone: 561.568.9226
Send an email with a link to
514 NE 3rd Avenue, Delray Beach, FL 33444.
Email 514 NE 3rd Avenue, Delray Beach, FL 33444
Thank you for your inquiry! As a thank you, we have a Special Mortgage Offer for You.
We would like to provide you a free, no-obligation, home loan pre-approval review.